House & Land Package

Designed for space, comfort and light

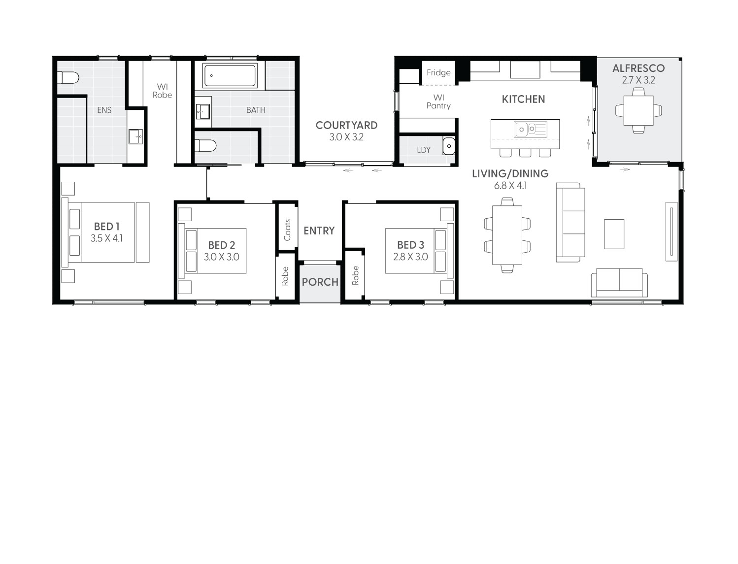
Designed for modern living with a rustic edge, the Barn House 14 is a three bedroom home that balances space and connection. A front living and dining area create a welcoming entry, while the central courtyard and alfresco bring light and outdoor living into the heart of the home.

Inclusions:

*Site cost allowance to be confirmed once soil & survey completed.
*Flexible Barn House Inclusions
*2550 Ceiling Heights
*Double Glazing
*Fisher & Paykel Appliances
*Haier Reverse Cycle Heat Pump
*6-Star Energy Rating

The price is based on house design and floor plan shown and on builders preferred siting. Price as at 09/03/2026. Site cost allowance has been included in the advertised price and will be confirmed as fixed once soil and survey and other statutory reports have been obtained. The price does not include additional legal fees relating to the building and/ or land contract, stamp duty and registration fees. Standard inclusions apply to the house and land package price unless otherwise listed. Images shown may depict fixtures, finishes and features not supplied by Wilson Homes. Images may also depict optional variations to the house. Wilson Homes reserves
the right to change prices or inclusions without notice. Speak to one of our Building & Design Consultants to get a comprehensive understanding of what is included. All plans are copyright and no part may be reproduced or copied without prior consent from Wilson Homes Tasmania Pty Ltd. ABN: 96 126 636 897. BLN: 963880604.

 

Details

Address: 
Lot 52, Kings Grove Estate Huonville TAS 7109
Facade name:
Barn-House-14
Block size:
555m2
Storey:
1
775000.00

Floor Plans

Enlarge floor plan

Show Block Siting
BarnHouse-14-single-storey-home-design-floor-plan-LHS_4.jpg
Note: Wilson Homes reserves the right to change prices or inclusions without notice. For more detailed home pricing, including details about the standard inclusions for the house and charges for pre-determined optional upgrades, please talk to one of our Consultants. Lot dimensions are approximate. Specific details, pricing and dimensions will be included in your contract.
3
 Bed
2
 Bath
0
 Car
1
 Storey
Width
19.20m
Length
7.50m
Total
134.28m²
   

Package Location

1 Huonville TAS 7109

Enquiry

CAPTCHA

Please complete the enquiry form and someone from our team will be in contact within 24 hours.

Alternatively you can give a building and design consultant a call on
1300 595 050.

Life at the Huonville, Franklin & Huon Valley Community

house and land packages tasmania huonville franklin huon valley

South West of Hobart, the Huon region retains the beauty, charm and heritage of a bygone era, yet it is only a 30 minute drive from Hobart. Build a House & Land package in the Huon Valley and enjoy an accessible rural lifestyle with water views and beachside locations. 

Schools
Primary and Secondary Schools
Health
There are a number of Public and Private Hospitals and Medical Centers in the area
Retail
Boutique producers, antique and second hand stores
Parks & Recreation
Parks and reserves, public playgrounds, BBQ facilities and skate parks.
Transport
Transport options available including buses and ferries.