Secure Your Lot at Huntingfield Land Estate!

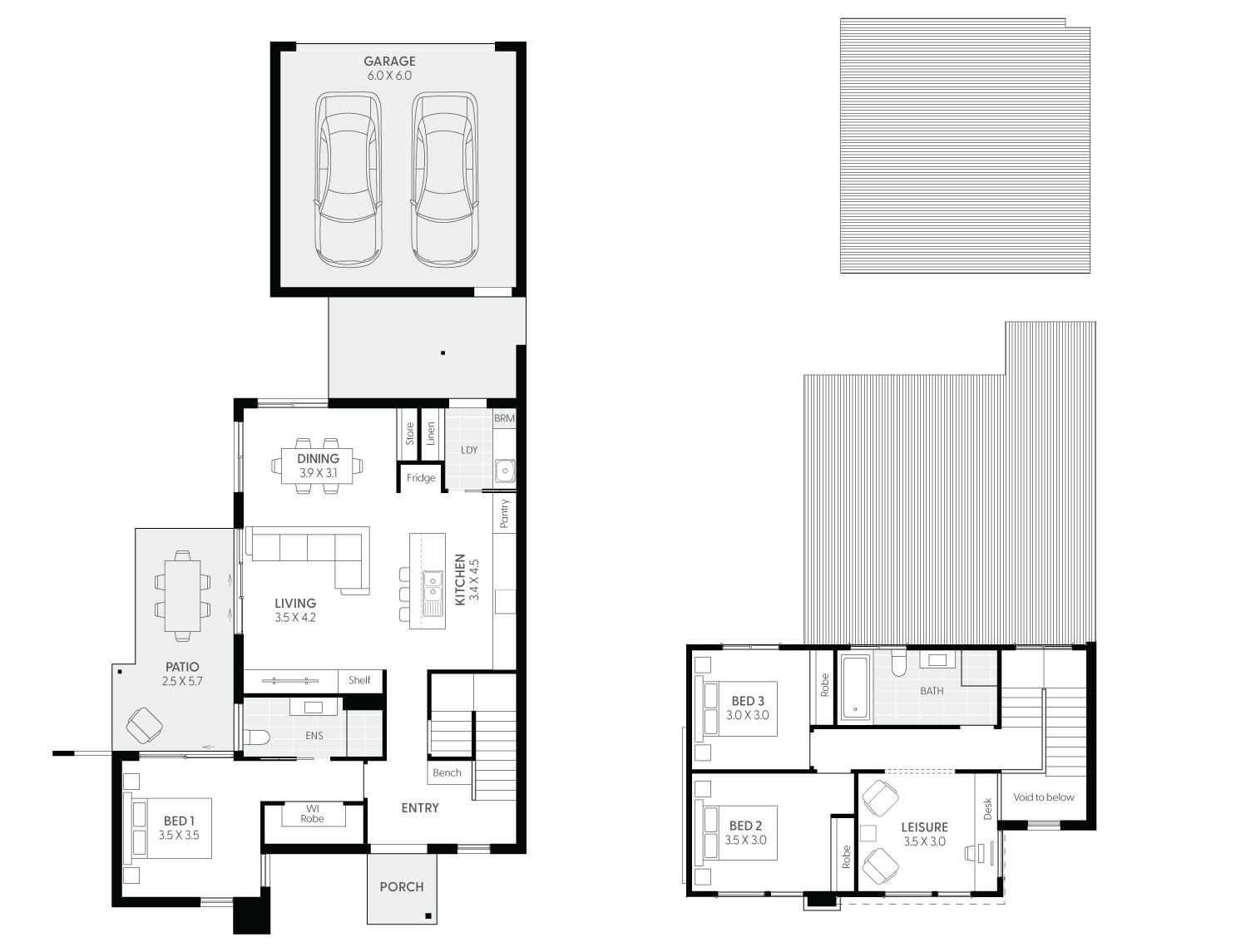
A Laneway Townhouse design that boasts a generous ground floor living area that opens out to a private northerly courtyard. A ground floor bedroom suit allows promotes single level living and passive connections to the front courtyard.  The upper floor accommodates additional bedrooms and second multi-purpose living area capturing vistas of the surrounding area.  A double garage is conveniently accessed off the laneway with adjoining functional utility areas.

Build Now, Pay Later

With Wilson Homes, you can secure your new home with just a 5% deposit — and pay nothing more until your build is complete*. Your loan stays at 5% during construction, with the remaining balance only due at Practical Completion. It’s our way of making homeownership more accessible during rising cost-of-living pressures.

Why Build with Wilson

  • Free site inspection and quote
  • 12-month fixed price
  • Access to the MyHome Portal
  • 30-year structural guarantee

Secure your lot today and start planning your new home with Wilson.

Details

Address: 
Huntingfield Townhouse Five Huntingfield TAS 7055
Facade name:
Facade B
Block size:
361
Storey:
2
From price
995000.00

Floor Plans

Enlarge floor plan

Show Block Siting
Laneway-Townhouse-LOT-105-107-double-storey-home-design-floor-plan.jpg
Note: Wilson Homes reserves the right to change prices or inclusions without notice. For more detailed home pricing, including details about the standard inclusions for the house and charges for pre-determined optional upgrades, please talk to one of our Consultants. Lot dimensions are approximate. Specific details, pricing and dimensions will be included in your contract.
3
 Bed
2
 Bath
2
 Car
2
 Storey
Width
10.35m
Length
22.64m
Total
202.00m²
   

Room Dimensions

Bed 1
3.5 x 3.5
Bed 2
3.5 x 3.0
Bed 3
3.0 x 3.0
Living
3.5 x 4.2
Dining
3.9 x 3.1
Kitchen
3.4 x 4.5
Patio
2.5 x 5.7
Leisure
3.5 x 3.0
Garage
6.0 x 6.0

Package Location

Huntingfield Townhouse Five Huntingfield TAS 7055

Enquiry

CAPTCHA

Please complete the enquiry form and someone from our team will be in contact within 24 hours.

Alternatively you can give a building and design consultant a call on
1300 595 050.

Life at the Kingston, Margate, The Channel Community

house and land packages tasmania kingston margate channel

The Southern suburbs of Hobart serve as an escape from the hustle and bustle of the busy city. As the ocean’s mist curls through Kingston’s hills of a morning, it is clear why it was named the “Best Suburb in Australia for Families” by Aussie Home Loans. Start building your dream House & Land package here.

One of the fastest-growing regions of Tasmania, the area boasts views of the beachside, a challenging golf course, and historic attractions as well as an incredible community mixture of young, old, newcomers and long-time residents.
 

Schools
Primary and Secondary Schools
Health
There are a number of Public and Private Hospitals and Medical Centers in the area
Retail
Boutique producers, antique and second hand stores
Parks & Recreation
Parks and reserves, public playgrounds, BBQ facilities and skate parks.
Transport
Transport options available including buses and ferries.