Under Construction - Move In July 2026

Welcome to this beautifully presented 4-bedroom, 2-bathroom family home nestled in the peaceful suburb of Bagdad, just minutes from the heart of Bagdad and a scenic 40-minute drive to Hobart.

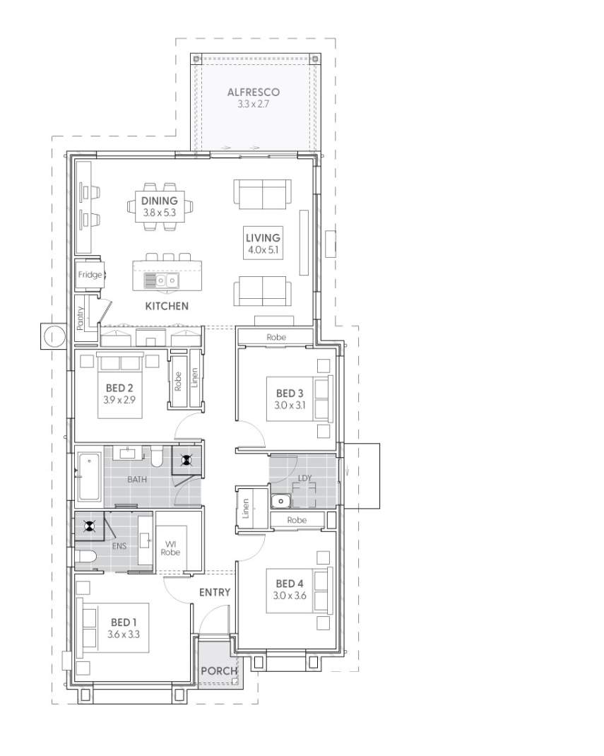
Set on a generous block, this home offers the perfect blend of modern comfort and relaxed rural living. The light-filled, open-plan living and dining area flows seamlessly into a contemporary kitchen featuring quality appliances, ample storage, and a breakfast bar - ideal for both family meals and entertaining guests.

The master bedroom includes a walk-in robe and private ensuite, while three additional bedrooms with built-in robes provide plenty of space for a growing family, guests or a home office. The central bathroom is stylish and functional, complete with a separate bath and shower.

Step outside to the alfresco area, perfect for year-round outdoor dining or simply unwinding while enjoying the fresh country air and scenic surrounds. The fully fenced backyard offers a safe play area for children and pets, with scope for gardening or further landscaping.

Additional features include:

  • *MYHOME & First Home Buyers Eligible
  • Reverse-cycle air conditioning for year around comfort
  • Separate laundry with external access
  • Secure parking and ample off-street parking
  • Peaceful location with a community feel

Whether you're upsizing, relocating, or investing, this property offers the space, comfort, and lifestyle that's hard to beat.

Details

Address: 
25 Monteith Crescent, Bagdad Bagdad TAS 7030
Facade name:
Executive
Block size:
602m2
Storey:
1
Move In July 2026
675000.00

Floor Plans

Enlarge floor plan

Show Block Siting
CbyW-Bagdad-25Monteith-Cres-York-14-RHS.jpg
Note: Wilson Homes reserves the right to change prices or inclusions without notice. For more detailed home pricing, including details about the standard inclusions for the house and charges for pre-determined optional upgrades, please talk to one of our Consultants. Lot dimensions are approximate. Specific details, pricing and dimensions will be included in your contract.
4
 Bed
2
 Bath
0
 Car
1
 Storey
Width
8.50m
Length
16.40m
Total
147.51m²
   

Package Location

25 Monteith Crescent, Bagdad Bagdad TAS 7030

Enquiry

CAPTCHA

Please complete the enquiry form and someone from our team will be in contact within 24 hours.

Alternatively you can give a building and design consultant a call on
1300 595 050.

Life at the Brighton, Bagdad, Kempton Community

House and Land Packages Brighton, Bagdad, Kempton Tasmania

In the southern midlands of Tasmania, families are drawn in by it’s relaxed atmosphere and backdrop. Containing many different landscapes including majestic ranges, fertile vineyards and meandering watercourses. Build your dream House & Land package here.

A fast growing area offering the perfect suburbs for young families or retirees seeking a friendly, peaceful and quite place to settle down. 

Schools
Primary and Secondary schools are all within a 10 minute drive
Health
There are a number of Public and Private Hospitals and Medical Centers in the area
Retail
Supermarkets, restaurants, pubs, doctors surgery.
Parks & Recreation
Sporting clubs, Bonorong Wildlife Sanctuary, walking trails.
Transport
Buses and taxis are readily available to explore.